1 / 17

MINISTERE DES TRAVAUX PUBLICS MINISTERE DE LA JUSTICE

MINISTERE DES TRAVAUX PUBLICS MINISTERE DE LA JUSTICE. CONSTRUCTION D’UN NOUVEAU HOTEL DE LA JUSTICE DE PAIX A ESCH-SUR-ALZETTE CONFERENCE DE PRESSE. 12 mars 2007. ADMINISTRATION DES BATIMENTS PUBLICS DIVISION DES TRAVAUX NEUFS. 1. 2. LE CONTEXTE.

davida
Download Presentation

MINISTERE DES TRAVAUX PUBLICS MINISTERE DE LA JUSTICE

An Image/Link below is provided (as is) to download presentation Download Policy: Content on the Website is provided to you AS IS for your information and personal use and may not be sold / licensed / shared on other websites without getting consent from its author. Content is provided to you AS IS for your information and personal use only. Download presentation by click this link. While downloading, if for some reason you are not able to download a presentation, the publisher may have deleted the file from their server. During download, if you can't get a presentation, the file might be deleted by the publisher.

E N D

Presentation Transcript


  1. MINISTERE DES TRAVAUX PUBLICS MINISTERE DE LA JUSTICE CONSTRUCTION D’UN NOUVEAU HOTEL DE LA JUSTICE DE PAIX A ESCH-SUR-ALZETTE CONFERENCE DE PRESSE 12 mars 2007 ADMINISTRATION DES BATIMENTS PUBLICS DIVISION DES TRAVAUX NEUFS 1

  2. 2

  3. LE CONTEXTE • Le présent projet de loi se situe dans le droit fil de la loi du 6 avril 1999 relative à la construction d’une Cité judiciaire au plateau du Saint-Esprit à Luxembourg. • Le Gouvernement entend de même garantir aux justiciables du ressort de la Justice de Paix d’Esch-sur-Alzette un accueil dans un bâtiment fonctionnel répondant à leurs besoins. • Dès lors le principe de la construction d’un nouveau bâtiment est retenu dès 1993. A la demande du Ministre de la Justice ce bâtiment doit être suffisamment spacieux pour arbitrer quinze juges de paix, les salles d’audience et salles d’enquête ainsi que le personnel correspondant à ce nombre de juges de paix. • Après de nombreuses réunions préparatoires auxquelles participent les représentants des services concernés de l’Etat et de la Ville d’Esch-sur-Alzette ainsi que des autorités judiciaires, une étude de faisabilité est élaborée. • Par la suite le Conseil Communal de la Ville d’Esch-sur-Alzette vote un projet d’aménagement particulier adapté au présent projet de loi. 3

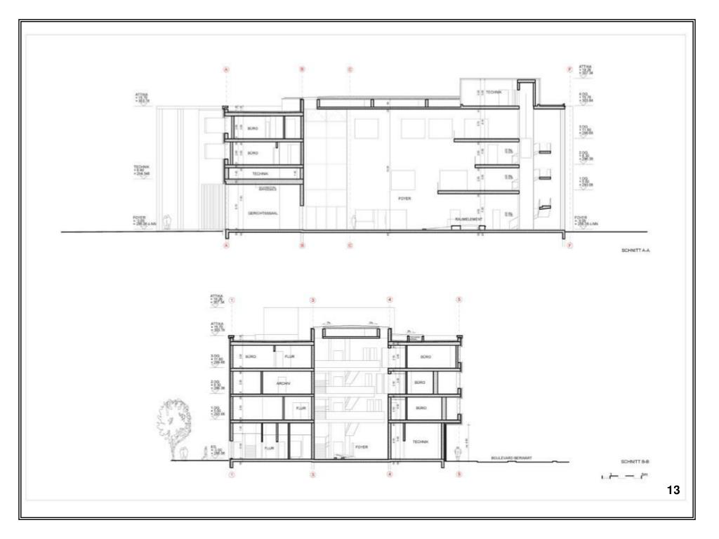
  4. LE PROGRAMME • Rez-de-chaussée: • foyer • grande salle de séance • 9 bureaux employés • archives • locaux techniques • Premier étage: • 2 petites salles d’audience • 7 salles de réunion • archives • Deuxième étage: • 15 bureaux greffiers • archives • Troisième étage: • 15 bureaux juges de paix • salle de conférence • bibliothèque 4

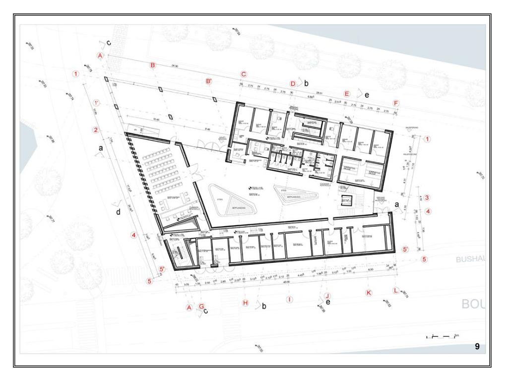
  5. LE PRINCIPE URBANISTIQUE • La Ville d’Esch-sur-Alzette se trouve dans une phase de grands changements urbains. • Le futur Hôtel de la Justice de Paix trouve naissance au confluent d’anciennes structures (centre-ville, rue de l’Alzette) et de nouveaux développements du domaine Schlass-goart. • Le bâtiment est implanté à la limite sud du nouveau boulevard Berwart et à l’ouest attenant à la rue de l’Alzette et à la place de l’Hôtel de Ville. 5

  6. LE PRINCIPE ARCHITECTURAL • Il s'agit d'une structure cubique se développant autour d'un atrium central couvert. • Le foyer au rez-de-chaussée sert de zone centrale pour le bâtiment, point de départ de son aménagement vertical d’où partent l’ascenseur et l’escalier principal. Une large bande vitrée au-dessus de l'atrium permet un bon ensoleillement de l'espace central du bâtiment. • La structure interne du bâtiment se divise en parties publiques, semi-publiques et closes: • - rez et 1er étage: • salles de séances, salles d'instructions, service de consultations • - 2e et 3e étage: • bureaux des juges et greffiers qui ne sont pas accessibles au public • Les couloirs donnant sur l’atrium seront de couleurs différentes, ce qui engendre un jeu de couleurs et de tons alternant et changeant entre les couloirs et les deux ailes administratives. ATRIUM 6

  7. LE PRINCIPE CONSTRUCTIF • Le bâtiment est constitué d’une structure (murs, piliers) en béton armé. Le bâtiment possède ses propres noyaux de contreventement constitués par les cages d'escalier, gaines d'ascenseur et gaines techniques. • Les dalles seront réalisées en béton armé, les cloisons de séparation intérieures en plaques de plâtre pour des raisons de flexibilité. • La toiture est formée par une toiture plate légèrement inclinée. • La façade du bâtiment sera réalisée en plaques de béton en fibre avec aération au verso et isolation thermique de 18 cm d’épaisseur. 7

  8. LE PRINCIPE ENERGETIQUE • Le projet est basé sur les recommandations du concept des "lycées à utilisation rationnelle de l’énergie". • L’isolation de l’enveloppe du bâtiment est sensiblement supérieure à celle normalement mise en œuvre en vue de minimiser les pertes de chaleur. • La mise en place d’une technique minimisant les frais de fonctionnement, ceci en utilisant au maximum les phénomènes naturels à disposition: • - refroidissement nocturne (utilisation de l’inertie thermique de la structure du bâtiment) • - le refroidissement adiabatique de l’air frais • - installation de ventilo-convecteurs à faible consommation d’énergie (confort optimisé d’un nouveau type de ventilo-convecteurs extrêmement silencieux sans effets de courant d’air désagréables) en combinaison avec un tour de refroidissement profitant au maximum des possibilités de refroidissement naturel. 8

  9. 9

  10. 10

  11. 11

  12. 12

  13. 13

  14. 14

  15. 15

  16. LE DEVIS ESTIMATIF (INDICE 625.70 / AVRIL 2006) COUT DE CONSTRUCTION 8'806’000.- Gros-oeuvre fermé 4'947’000.- Installations techniques 1'686’000.- Parachèvement 2'173’000.- COUT COMPLEMENTAIRE 1‘562’000.- Alentours 134’000.- Equipements et mobilier 501’000.- Décor artistique (~1,5 %) 133’000.- Energies renouvelables (~1,0 %) 88'000.- Frais 265'000.- Réserve 441'000.- TOTAL DES TRAVAUX10’368’000.- HONORAIRES 1'789’000.- TOTAL TTC 13'926’880.- TVA 1’769’880.- ____________________________________________________________________________________________________ TOTAL GENERAL13'926’880.- Arrondi 14'000'000.- Volume bâti: 17’600 m3 Surface brute: 3’700 m2 16

  17. LES BUREAUX D’ETUDES Architecte: Atelier d’architecture et de Design Jim Clemes Ingénieur en génie civil: IC Lux Ingénieur en génie électrique: BLS Energieplan Ingénieur en génie thermique: BLS Energieplan Ingénieur en génie sanitaire: BLS Energieplan Organisme agréé: AIB-Vinçotte 17

More Related